Kumanda Kontrol Ünitesi Arabası (komple çelik)
Ürün Kodu : VS1028F5-86/4
| Taşıcı Tekerlek | Çelik Taşıyıcı Tekerlek |
| Malzeme | Çelik Gövde Çelik Kablo Bağlantı Aparatı Galvanizli Gövde |
| Çalışma Sıcaklığı | -30°C to +70°C |
| Max. Kablo Taşıma Kapasitesi | 16 kg |
| Ağırlık (kg) | 1,31 |
*Bu ürün genellikle 16 ve 24 pin soket takımı montajı ile birlikte kullanılıp hızlı ve pratik montaj yapılabilmesini sağlamaktadır.*Fotoğrafta yer alan ürün üzerinde montajlı olan soket ve rakor görsel uygulama anlatımı için olup, ürünle birlikte satılmamaktadır. |
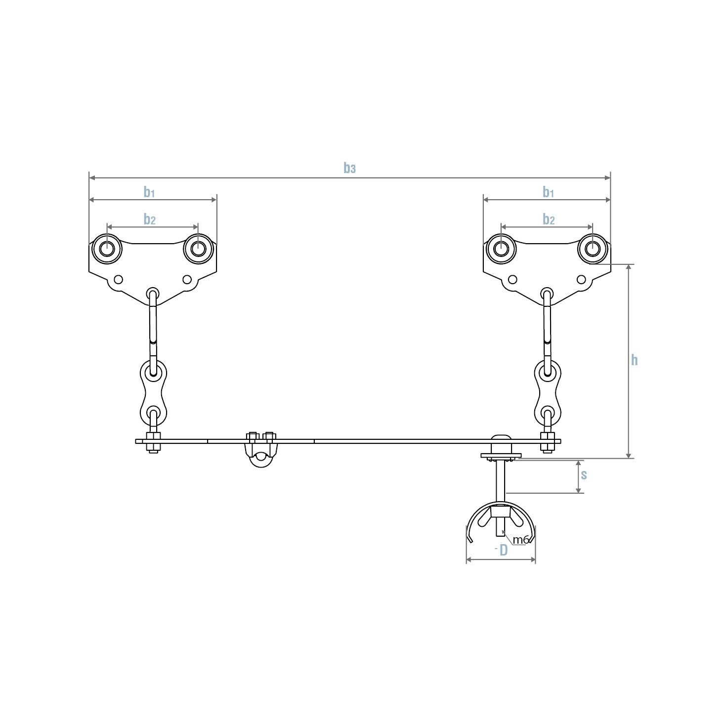
Ölçüler (mm)
| a | b1 | b2 | b3 | s | h | w1 | w2 | øD |
| 125 | 93 | 66 | 380 | 17 | 80 | 21 | 22 | 50 |